Type A: Basis 4 Pers. Mobilheim

  • 4Number of persons
  • 2Number of bedrooms

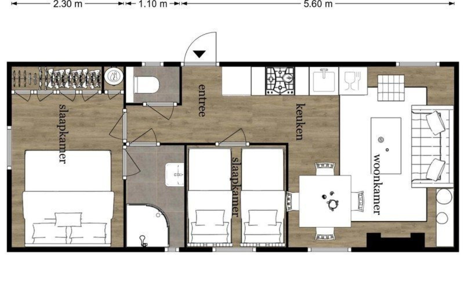
Das Mobilheim verfügt über

  • Eine voll ausgestattete Küche mit Kombi-Ofen, Gasherd und Kaffeemaschine (Senseo und Filtermaschine)
  • Eine Sitz- und Essecke mit Fernseher
  • Badezimmer mit Dusche und Waschbecken
  • Toilette
  • Schlafzimmer mit Doppelbett
  • Schlafzimmer mit zwei Einzelbetten
  • Zentralheizung
  • Überdachte Terrasse mit Gartenmöbeln

Das Mobilheim verfügt über

  • Eine voll ausgestattete Küche mit Kombi-Ofen, Gasherd und Kaffeemaschine (Senseo und Filtermaschine)
  • Eine Sitz- und Essecke mit Fernseher
  • Badezimmer mit Dusche und Waschbecken
  • Toilette
  • Schlafzimmer mit Doppelbett
  • Schlafzimmer mit zwei Einzelbetten
  • Zentralheizung
  • Überdachte Terrasse mit Gartenmöbeln

Preise und Verfügbarkeit